The Aquareg Nanofix wastewater treatment plant is used to purify solvent-contaminated
water in industrial buildings. The operation of the treatment plant is automatic and starts by itself when the water level in the storage tank rises.
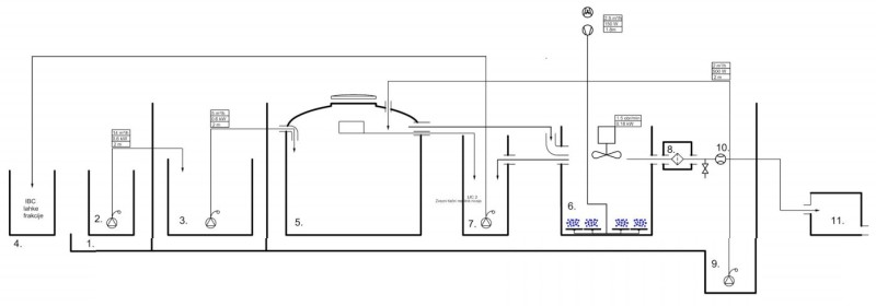
Technological units and advantages for Aquareq Nanofix:
1. Captures contaminated water
2. Use as a water reservoir for contaminated water
3. Use as a main retainer
4. Filling of light fractions
5. A settler with a rough removal of light fractions
6. Use as a flotator with fine removal of light fractions
7. Lighter fraction stocker
8. Nanofix filter
9. Meteor water pump
10. Outflow with flowmeter




